關于開平市金雞鎮金雞圩文樂街、銀龍路136-150號銀龍軒住宅小區項目報建圖調整的公示
發布日期:2022-11-25
來源:
本網
打印
【字體:小 中 大】
內容導航:


銀龍軒住宅小區(商業樓一)擬調整方案

銀龍軒住宅小區(商業樓一)原審批方案

銀龍軒住宅小區(商業樓二)擬調整方案

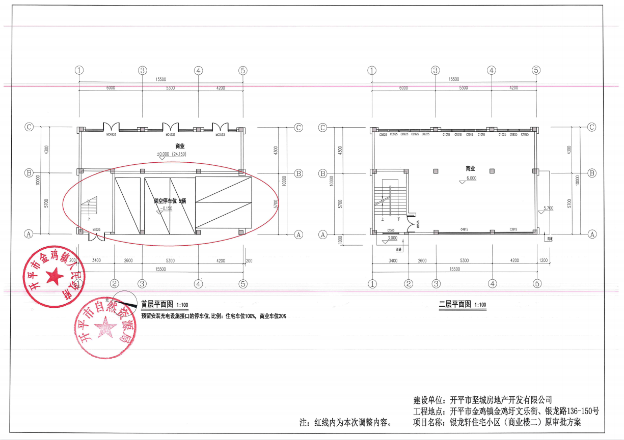
銀龍軒住宅小區(商業樓二)原審批方案
版權所有:開平市人民政府
主辦:開平市人民政府辦公室
備案編號: 粵ICP備05079694號 網站標識碼:4407830003 粵公網安備; 44078302000116
開平市政府網公眾號